ingonish Community centre
The proposed Ingonish Community Centre is envisioned as a welcoming, multi-purpose facility designed to strengthen social connection and civil life within the remote coastal community. Situated along the renowned Cape Breton Cabot Trail, the building’s form is informed by regional landforms, vernacular material culture and the local building practices. The novel yet familiar building form highlights warm materials, regional forms and local craft achieving a timeless civil presence.
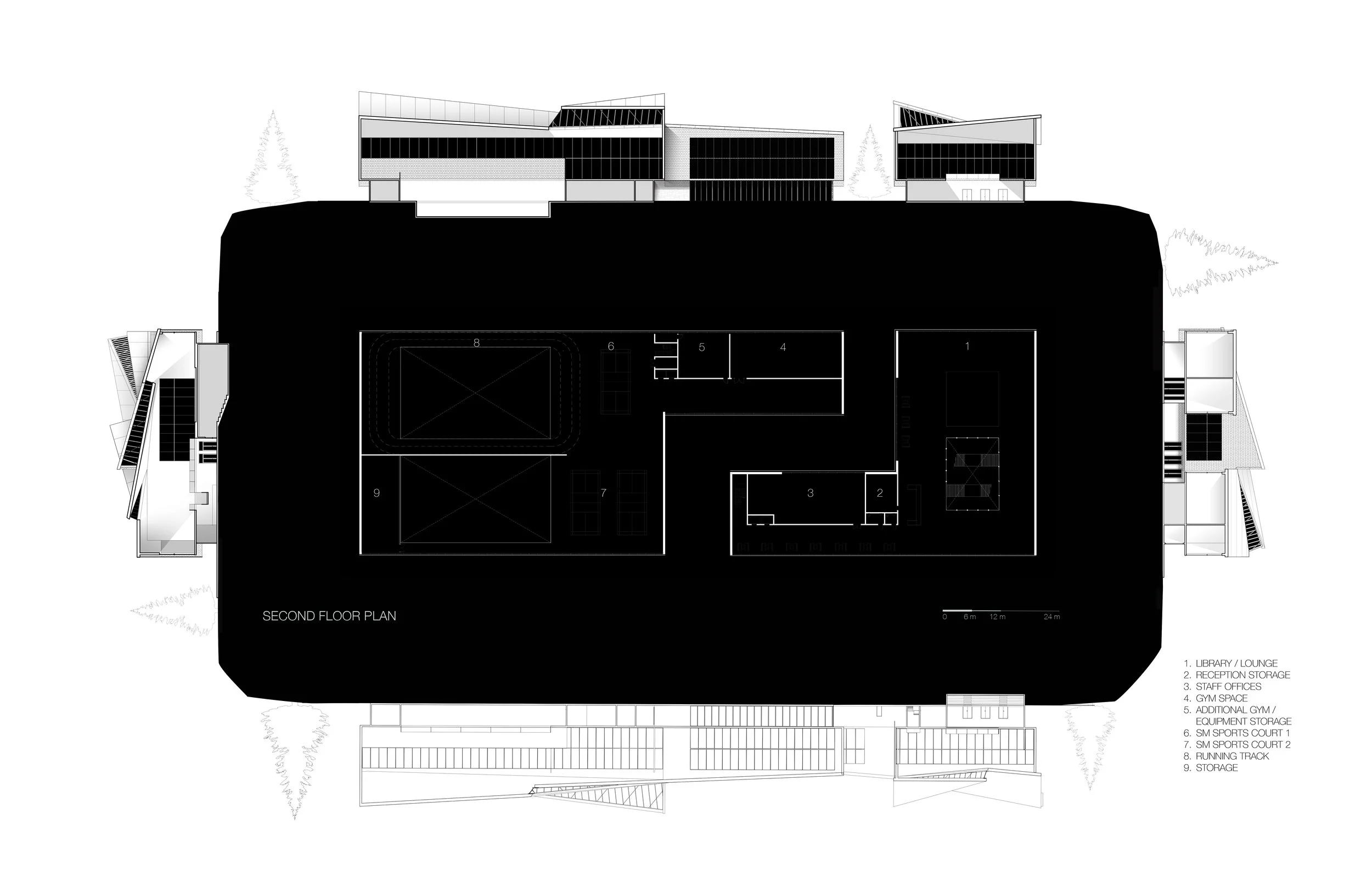
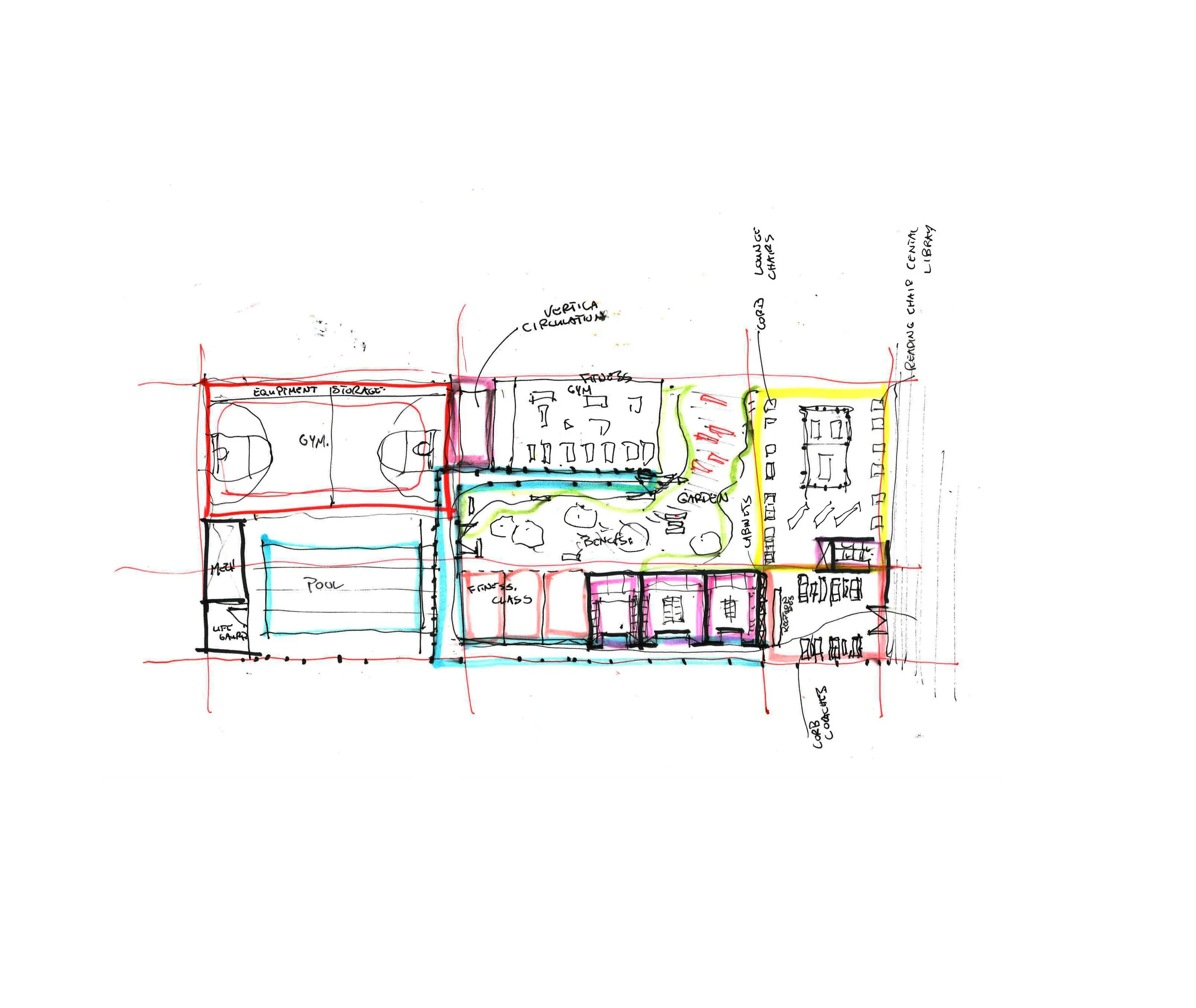
The building is organized to prioritize a clear and accessible layout. The program spaces are intentionally layered and visually interconnected allowing activities to flow into one another, remaining in dialogue with on another rather than being expressed as isolated rooms. A prominent front entrance opens into the central community hub that includes reception, administrative offices and an open lounge designed for informal daily use. Extending from the central core are intuitive circulation paths that direct circulation toward the primary program areas including an aquatic centre, a gymnasium, a library, a community theatre and flexible multi-purpose rooms.
Drawing on the value of biophilic natural features, the building’s program spaces are wrapped around a centralized vegetated courtyard hosting native flora and fauna. This exterior gathering space is designed to aid in passively, storm water retention, added biodiversity while also fostering community engagement with the natural environment.
The result is a highly adaptable community facility that supports everyday activity while offering a meaningful gathering place - one rooted in the character, culture, and landscape of Ingonish.
Architecture and Design: Peter Braithwaite Studio Ltd. (Peter Braithwaite, Asma Ali, Lucien Landry, Jillian Smyth)
Renderings: Peter Braithwaite Studio Ltd. (Peter Braithwaite, Lucien Landry, Jillian Smyth)
Drawings: Peter Braithwaite Studio Ltd.
